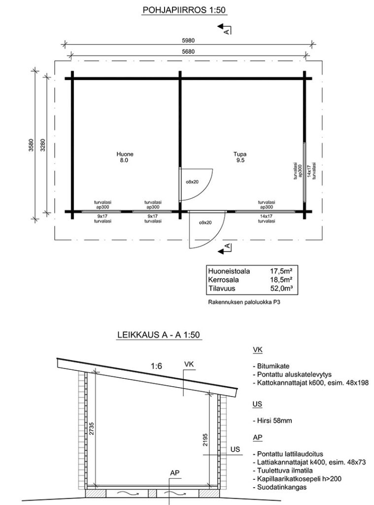
Vierasmaja, kerrosala 18,5 m2

Hirsikehikkopaketti sisältää:

Hirret 58×145, kasaus valmiina
Kierretangot 6 kpl, aluslaatat, mutterit
Muu puutavara metritavarana:
Karapuut
Lattiakannattajat 48×98 pk
Niskat 48×73 pk
Kattoniskat 48x198x4500
Kulmaraudat 50 kpl
Aluslaudat RPL 20×95
Otsalaudat, ulkoverhous HS 20×120
Lattialaudat 28×95

Hinta: 6.300,00 €

Ikkuna- ja ovipaketti:

Ikkunat 14×17 2 kpl
Ikkunat 9×17 2 kpl
Ulko-ovi 9×20
Sisä-ovi 8×20
Myykilaudat 20X95

Hinta: 2.900,00 €

 Muuta:

  • Asiakkaan teettämät perustukset, perustussuunnittelijan ohjeen mukaan
  • Suojattava kosteudelta
  • Reklamaatiot 7 pv:n sisällä
  • Oikeudet muutoksiin pidetään
  • Paketin mukana pystytysohjeet

Koko paketti yhteensä:

9.200,00 €

(sis. alv 25,5 %)
(Noudettuna Ruosniemen Puupojat Oy:n pihasta)

Maksa joustavasti rahoituksella

Hoida hankintasi vaivatta OP:n rahoituksella.
Laske itsellesi sopiva kuukausierä laskurilla ja täytä hakemus helposti.

Ruosniemen Puupojat Oy - vierasmaja pohjapiirros